z型上料機是顆粒類物料輸送過程中的常用設備,采用了水平-垂直-水平的結構形式,采用變頻調速,可根據輸送量的要求輕松配合受料設備的工作,鄭州杰凱10余年生產經驗,承接定制,歡迎垂詢,整機設計合理,運行平穩,運行噪音小,故障率低,既可單獨使用,也可與我司組合秤、包裝機等配套使用。

一、z型上料機產品概述
Z型提升機該機適用于糧食、食品、飼料和化工等部門的顆粒料、粉料的垂直提升輸送。可以和包裝機組成定量自動包裝系統,廣泛應用于食品包裝行業。主要由304不銹鋼以及食品級塑料聚丙PP制成,安全衛生。并由控制電路以及料位控制實現自動供料和停止的自動化功能。
二、z型斗式提升機產品特點
1、可實現物料水平和垂直高度的快速提升
2、可實現電腦控制,自動化程度高
3、操作簡單,維護方便
4、耐酸、耐堿、耐油,可輸送腐蝕性物料
5、整機由304不銹鋼和PP機塑料組成,可用于食品級物料的輸送
6、物料輸送過程中基本無破損,可減少物料的損耗
7、可選配震動喂料器投料,快速、均勻,無堵料、空料的等現象

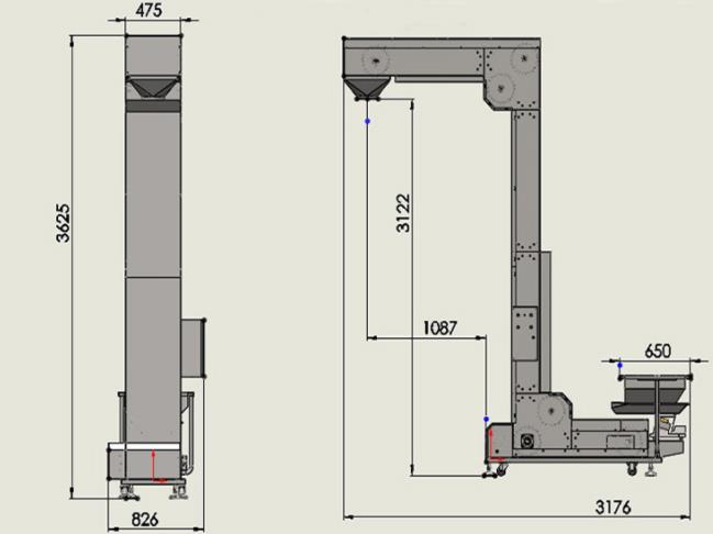
三、z型上料機技術參數
功率:0.75-1.5kw
輸送量:3-8m3/h
輸送斗:1.6L(420*140*70)(食品級PP料)
電壓:220v/380v 50hz
規格:L2300*W1000*1250mm
重量:500-600kg
四、產品綜述:
1、z型斗式提升機采用了全密封的設計形式,在輸送過程中,無粉塵泄露,確保了生產環境的衛生、干凈;
2、采用了變頻調速,在需要調整輸送量時,僅需選裝旋鈕即可快速完成,簡單輕松;
3、下水平距離、垂直輸送高度、上水平距離,可根據輸送距離、輸送的高度靈活設計,可據優化使用現場的具體參數,個性化定制。
4、經過多年的產品優化,整機設計結構更趨于合理,故障點得到較大的減少、故障率自然就低;
5、我們是源頭廠家直銷,常規產品庫存充足,定制產品,加工周期短,售后服務有保障,價格也很美麗哦;
6、z型上料機采用了誘導式卸料,傳送料斗密集分布,在物料輸送時幾乎無回料和挖料現象,因此無效功率少




客服1